ALIPLAST IMPERIAL
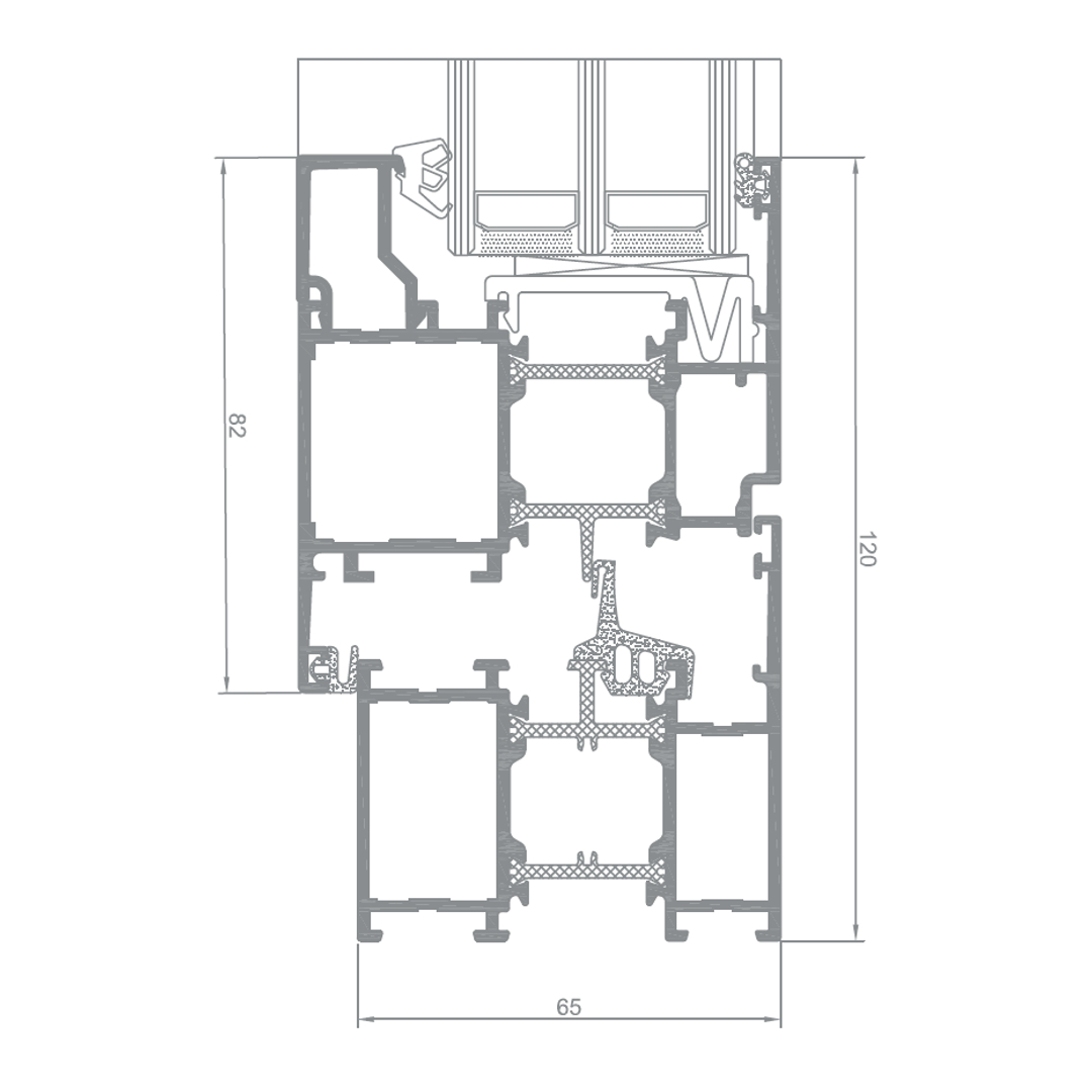
Aliplast Imperial 65 je aluminijumski sistem sa termičkim prekidom, dizajniran za izradu prozora, vrata i fiksnih staklenih panela.
Trokomorna konstrukcija sa poliamidnim pregradama obezbeđuje visoku toplotnu i zvučnu izolaciju, dok moderan dizajn profila omogućava estetski privlačan izgled fasade.
Sistem je idealan za objekte koji zahtevaju visoke energetske performanse i dugotrajnost.
Konstrukcija i materijali
-
Materijal profila: aluminijum sa poliamidnim termičkim prekidom
-
Širina termičkog prekida: 24 mm
-
Konstrukcija: trokomorna sa centralnim zaptivanjem
-
Zaptivači: EPDM guma visoke otpornosti na UV zračenje i atmosferske uticaje
-
Debljina ispune (stakla/panela): 4 – 51 mm
-
Tip okova: euro-groove standard (kompatibilan sa većinom okovnih sistema)
-
Dostupne izvedbe: standardna, sa skrivenim krilom (SU), sa spoljašnjim otvaranjem (OUT), sa povećanom termoizolacijom (i+)
Toplotne i akustične performanse
-
Koeficijent toplotne provodljivosti rama (Uf): 1,28 – 1,85 W/m²K
-
Koeficijent toplotne provodljivosti prozora (Uw): od 1,15 W/m²K (zavisno od kombinacije profila i ispune)
-
Zvučna izolacija: do 43 dB (zavisno od tipa stakla i izvedbe)
Otpornost i klase performansi
-
Propusnost vazduha: Klasa 4 (EN 12207)
-
Otpornost na opterećenje vetrom: Klasa C5/B5 (EN 12210)
-
Vodonepropusnost: E900 (EN 12208)
-
Otpornost na udar: Klasa 3 (EN 13049)
Tipologije i primena
-
Prozori: jednokrilni, dvokrilni, kip-otvarajući (tilt & turn)
-
Vrata: unutrašnja i spoljašnja otvaranja, jedno- ili dvokrilna
-
Fiksne partije i kombinovane konstrukcije
-
Izvedbe sa skrivenim krilom (SU) i spoljašnjim otvaranjem (OUT)
-
Mogućnost izvedbe lukova i specijalnih oblika profila
Prednosti sistema
-
Visoka termoizolacija zahvaljujući termičkom prekidu od 24 mm
-
Savršen odnos između čvrstoće i mase profila
-
Odlična zaptivenost i zaštita od atmosferskih uticaja
-
Fleksibilnost u izboru tipologija i debljina stakla
-
Moderan dizajn i ravne linije profila
-
Kompatibilnost sa velikim brojem dodatnih sistema (klizni, fasadni, ventilacioni)
-
Dugotrajnost, stabilnost i minimalno održavanje
Održavanje
-
Redovno čišćenje profila i stakala mekim, neabrazivnim sredstvima
-
Povremeno podmazivanje pokretnih delova okova
-
Provera odvoda kondenzata i integriteta zaptivki
-
Vizuelna kontrola površinske obrade jednom godišnje
Zaključak
Aliplast Imperial 65 predstavlja pouzdano i moderno rešenje za energetski efikasne prozore i vrata.
Zahvaljujući optimalnom balansu između čvrstoće, estetike i dugotrajnosti, ovaj sistem je pogodan za stambene i poslovne objekte koji zahtevaju vrhunski kvalitet i moderan izgled.



