KÖMMERLING 88
Kömmerling 88 je visokoperformansni PVC prozorski sistem sa višekomornom konstrukcijom i odličnom termoizolacijom. Sistem je dizajniran za maksimalnu energetsku efikasnost, dugotrajnost i estetiku, idealan za savremene stambene i poslovne objekte sa zahtevima za niskom potrošnjom energije i modernim dizajnom.
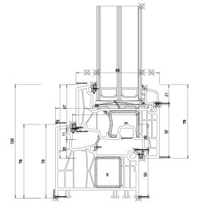
Kömmerling 88 Standard (klasično krilo)
Opis sistema
Kömmerling 88 Standard je klasična PVC varijanta sa vidnim krilom, namenjena objektima sa visokim zahtevima za toplotnu izolaciju i stabilnost. Profil sa 6 komora omogućava smanjenje gubitka toplote i dobijanje optimalnih energetskih performansi.
Tehničke karakteristike – Kömmerling 88 Standard
-
Dubina rama: 88 mm
-
Dubina krila: 100 mm
-
Debljina zastakljenja: do 51 mm
-
Termički prekid: višekomorna PVC konstrukcija
-
Toplotna izolacija (Uf): oko 0,9 W/m²K
-
Zvučna izolacija: do 46 dB
-
Propusnost vazduha: klasa 4
-
Vodonepropusnost: do E1200
-
Otpornost na udar vetra: klasa C5/B5
-
Maksimalne dimenzije krila: do 1600 × 2200 mm
-
Maksimalna težina krila: do 150 kg
-
Tipovi otvaranja: okretno, kip, okretno-kip, dvokrilno
-
Tip okova: vidljivi ili skriveni okovi
-
Sigurnosne klase: RC1N, RC2N i RC3
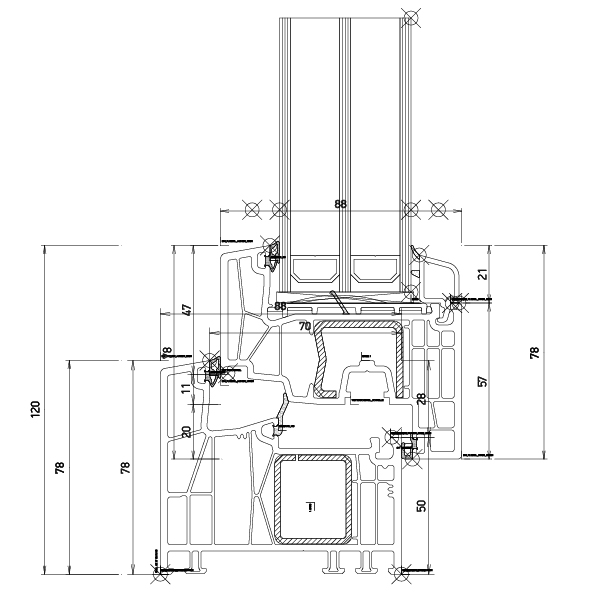
Kömmerling 88 Elegance (skriveno krilo / minimalizam)
Opis sistema
Kömmerling 88 Elegance je varijanta sa skrivenim krilom, namenjena projektima sa minimalističkim dizajnom i maksimalnom zastakljenom površinom. Sistem zadržava sve tehničke prednosti standardne verzije, uz dodatnu estetsku vrednost i savremen izgled fasade.
Tehničke karakteristike – Kömmerling 88 Elegance
-
Dubina rama: 88 mm
-
Dubina krila: 100 mm
-
Debljina zastakljenja: do 48 mm
-
Termički prekid: višekomorna PVC konstrukcija
-
Toplotna izolacija (Uf): oko 0,95 W/m²K
-
Zvučna izolacija: do 45 dB
-
Propusnost vazduha: klasa 4
-
Vodonepropusnost: do E1100
-
Otpornost na udar vetra: klasa C5/B5
-
Maksimalne dimenzije krila: do 1500 × 2100 mm
-
Maksimalna težina krila: do 150 kg
-
Tipovi otvaranja: okretno, kip, okretno-kip
-
Tip okova: potpuno skriveni okovi i šarke
-
Sigurnosne klase: RC1N, RC2N i RC3
Prednosti sistema
-
Izuzetna energetska efikasnost i termoizolacija
-
Minimalistički dizajn i čiste linije
-
Dve estetske varijante: standardno i skriveno krilo
-
Dugotrajnost, stabilnost i laka montaža
-
Pogodan za moderne stambene i poslovne objekte
-
Kompatibilnost sa PVC vratnim i fasadnim sistemima
-
Mogućnost visokih sigurnosnih klasa (RC3)
Zaključak
Kömmerling 88 pruža vrhunske performanse za stambene i poslovne objekte sa visokim zahtevima za energetsku efikasnost i modernim dizajnom. Sistem kombinuje funkcionalnost, dugotrajnost i estetsku eleganciju u skladu sa najvišim evropskim standardima kvaliteta.
🔹 Kömmerling 88 – PSK (Paralelno-klizni) sistem
Opis sistema:
-
Premium PVC sistem sa 88 mm dubine montaže
-
7-komorni dizajn sa centralnim brtvljenjem
-
Pogodan za klizna vrata (Lift&Slide) i klasična vrata
-
Dostupan u verzijama: Standard, AluClip, AluClip Plus, AluClip Pro, AddOn, Passive House Dr. Feist, Passive House WA15/2, REGEL-air koemmerling.com
Tehničke karakteristike:
-
Materijal profila: PVC bez olovnih stabilizatora, 100% reciklabilan
-
Broj komora: 7
-
Koeficijent prolaza toplote rama (Uf): do 0,95 W/m²K
-
Koeficijent prolaza toplote prozora (Uw): do 0,72 W/m²K
-
Debljina stakla: od 24 mm do 58 mm, uključujući trostruko staklo
-
Zvučna izolacija: do 47 dB
-
Boje i završna obrada: bela, drvo dekori, jednobojne i metalik boje
-
Ekološki aspekt: proizvedeno sa stabilizatorima na bazi kalcijuma i cinka koemmerling.com
Prednosti:
-
Visoka energetska efikasnost – pogodnost za pasivne kuće
-
Izvrsna zvučna izolacija
-
Povećana sigurnost uz mogućnost ugradnje sigurnosnih stakala i okova
-
Dostupnost u širokom spektru boja i završnih obrada
-
Ekološki prihvatljiv proizvod
Maksimalne dimenzije PSK krila:
-
Širina: do 1600 mm
-
Visina: do 2500 mm
-
Maksimalna težina krila: do 200 kg



