Alumil SMARTIA M50
Alumil SMARTIA M50 je visokoperformansni modularni fasadni sistem koji omogućava potpunu slobodu u arhitektonskom dizajnu, kombinovan sa naprednom termoizolacijom i estetikom čistih linija.
Zahvaljujući svojoj modularnosti, sistem se nudi u tri verzije – Energy, Structural i Security, pokrivajući sve potrebe savremenih objekata, od estetskih do bezbednosnih.
🔧 Tehničke karakteristike
-
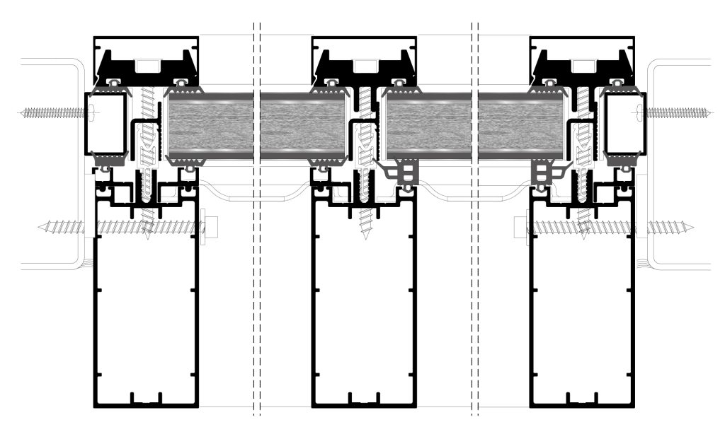
Vidljiva širina profila (iznutra/spolja): 50 mm
-
Dubina rama: 16 – 230 mm (zavisno od statike)
-
Debljina stakla: 6 – 50 mm
-
Koeficijent prolaza toplote (Uf): od 0,9 W/m²K
-
Vrste ispuna: Staklo, panel, kompozitne i ventilisane obloge
-
Otvaranje: Fiksna polja, prozori koji se otvaraju prema spolja (viseće, paralelno, projekciono)
-
Zaptivanje: Dvostruko EPDM brtvljenje sa kontrolom ventilacije i odvodom kondenzata
-
Kompatibilnost: Potpuna integracija sa Alumil SMARTIA prozorskim i vratnim sistemima
⚙️ Varijante sistema
🔸 SMARTIA M50 Energy
-
Termoizolovani fasadni sistem visokih performansi
-
Idealan za objekte sa zahtevima energetske efikasnosti klase A i A+
-
Omogućava ugradnju dvoslojnih i troslojnih stakala
-
Optimalan balans između statike, težine i toplotne izolacije
🔸 SMARTIA M50 Structural
-
Strukturalna varijanta sa potpuno staklenom spoljašnjom površinom
-
Bez vidljivih aluminijumskih spojeva spolja
-
Elegantna i čista arhitektonska estetika
-
Maksimalna transparentnost i vizuelna lakoća
🔸 SMARTIA M50 Security
-
Ojačana verzija sa protivprovalnim komponentama
-
Sertifikovana u skladu sa EN 1627 RC2 – RC3 klasama
-
Idealan izbor za poslovne, bankarske i komercijalne objekte
-
Kombinuje bezbednost, stabilnost i moderan izgled
🌟 Prednosti sistema
-
Moderan i minimalistički izgled
-
Odlične termo i zvučne karakteristike
-
Kompatibilnost sa fotonaponskim panelima i ventilisanim oblogama
-
Velika fleksibilnost u arhitektonskim rešenjima
-
Dugotrajnost i jednostavno održavanje
🏢 Primena
SMARTIA M50 je idealan za:
-
Poslovne i administrativne zgrade
-
Tržne centre i hotele
-
Objekte visokog standarda
-
Stambene i mešovite komplekse sa modernom fasadom








