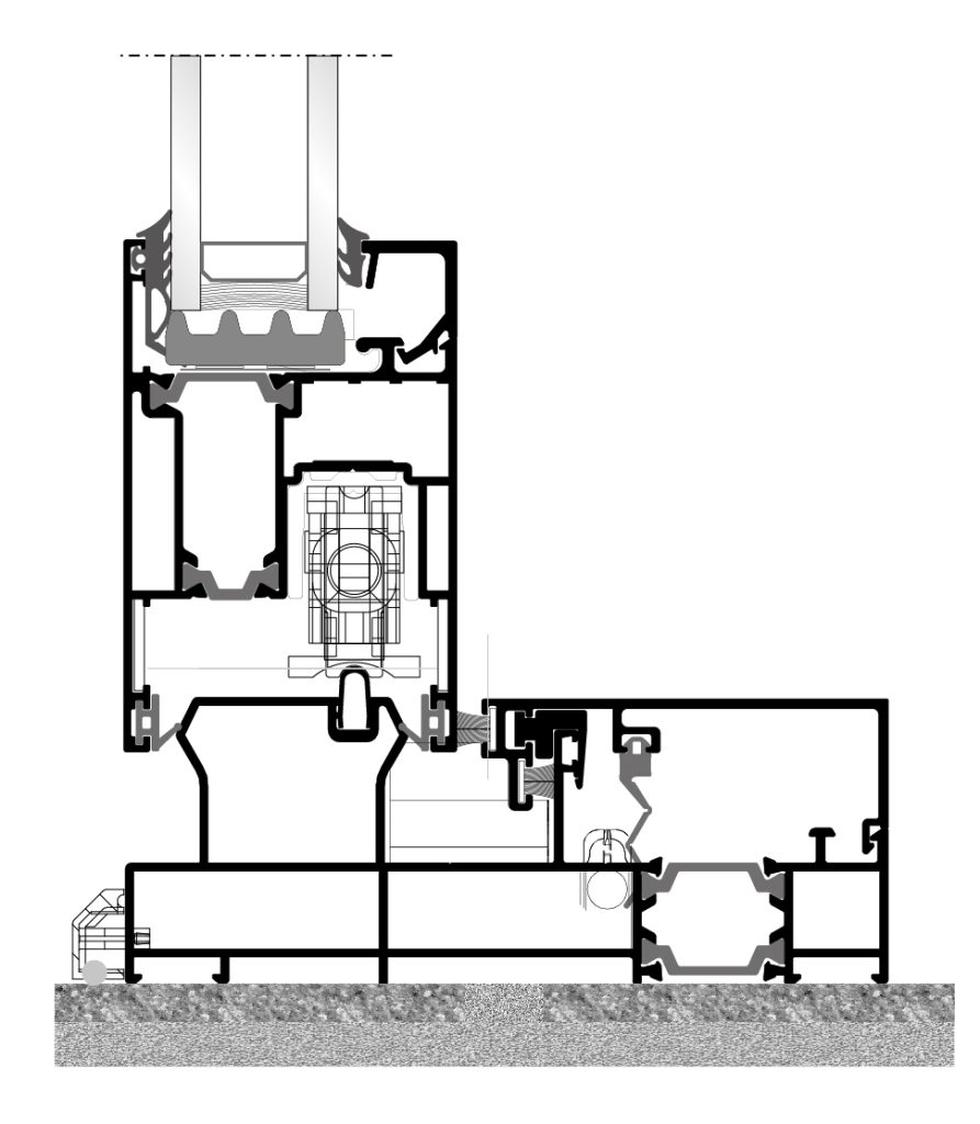
ALUMIL S560
Alumil SMARTIA S560 je napredni lift & slide (podizno-klizni) sistem sa termičkom izolacijom, namenjen modernim arhitektonskim projektima koji zahtevaju velike staklene površine i vrhunsku energetsku efikasnost.
Idealan je za kuće, luksuzne stanove i poslovne prostore, gde se traži spoj komfora, estetike i pouzdanosti.
🔧 Tehničke karakteristike
-
Vrsta sistema: Podizno-klizni (Lift & Slide)
-
Dubina rama: 56 mm
-
Dubina krila: 56 mm
-
Debljina stakla: do 44 mm
-
Maksimalna težina krila: do 300 kg
-
Koeficijent prolaza toplote (Uf): od 2,2 – 4,6 W/m²K
-
Zvučna izolacija: do 42 dB
-
Otpornost na vetar: C4 / B4
-
Vodonepropusnost: E750
-
Zaptivanje: EPDM trostruko brtvljenje
-
Tipologije: 2, 3 i 4 krila, kombinacije sa fiksnim delovima, pocket i kutne izvedbe
🌞 Prednosti sistema
-
Maksimalna vidljivost uz minimalne profile (spoj krila samo 49 mm)
-
Glatko i tiho klizanje zahvaljujući vrhunskim mehanizmima
-
Visoka termoizolacija i energetska efikasnost
-
Mogućnost vrlo velikih dimenzija krila (do 3 m visine)
-
Pogodan za luksuzne objekte i savremenu arhitekturu
🏡 Upotreba
SMARTIA S560 se preporučuje za:
-
Stambene objekte sa velikim terasama i panoramskim otvorima
-
Hotelske i poslovne prostore
-
Prostore gde su važni svetlost, pogled i izolacija



