Alumil SMARTIA M7
Alumil SMARTIA M7 je konvencionalni fasadni sistem sa termičkim prekidom, namenjen izradi vertikalnih i nagnutih fasada sa izuzetnim mehaničkim i izolacionim performansama.
Sistem je projektovan tako da omogućava maksimalnu fleksibilnost u dizajnu, jednostavnu montažu i pouzdanu zaštitu od vremenskih uticaja, uz estetski čist izgled i moderan vizuelni efekat.
🔧 Tehničke karakteristike
-
Vrsta sistema: Klasični (stick type) fasadni sistem sa termo prekidom
-
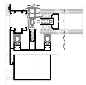
Vidljiva širina profila: 55 mm
-
Dubina rama / stub profila: 60 – 200 mm (u zavisnosti od statike i visine objekta)
-
Debljina stakla / ispune: 6 – 50 mm
-
Koeficijent prolaza toplote (Uf): od 1,1 W/m²K
-
Zaptivanje: Dvostruko EPDM brtvljenje sa kontrolom odvoda kondenzata
-
Otpornost na vetar i kišu: Do klase E1200 / RE1200
-
Mogućnost integracije otvarajućih prozora: Da, kompatibilno sa sistemom SMARTIA M78
🌟 Prednosti sistema
-
Pouzdan i testiran sistem sa termo prekidom
-
Odlična energetska efikasnost i statička stabilnost
-
Pogodan za objekte sa velikim visinama i zahtevnim geometrijama
-
Mogućnost kombinovanja sa otvarajućim elementima
-
Estetski ravne i elegantne linije spolja
-
Laka ugradnja i održavanje
⚙️ Tehničke varijante
-
SMARTIA M7 Standard – osnovna verzija sa odličnim odnosom cene i performansi
-
SMARTIA M7 Plus – unapređena termoizolacija i zaptivanje
-
SMARTIA M7 Fire Resistant (M7 FR) – varijanta sa poboljšanom otpornosti na požar, pogodna za javne objekte
🏢 Primena
SMARTIA M7 se koristi za:
-
Poslovne zgrade i banke
-
Tržne centre i aerodrome
-
Stambene i mešovite komplekse
-
Objekte gde je prioritet stabilnost i dugotrajnost konstrukcije





