ALUMIL MF65 / MF6500
Alumil SMARTIA MF65 i SMARTIA MF6500 predstavljaju dve moderne varijante harmonika sistema za vrata i pregrade, osmišljene da kombinuju savremeni dizajn, veliku transparentnost i maksimalnu funkcionalnost.
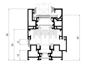
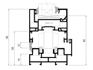
Glavna razlika između ovih sistema leži u prisustvu termo prekida kod modela MF65, što ga čini idealnim za energetski efikasne objekte, dok je MF6500 ekonomičniji izbor za prostore gde termoizolacija nije presudna.
🔧 Tehničke karakteristike
| Karakteristika | SMARTIA MF65 | SMARTIA MF6500 |
|---|---|---|
| Tip sistema | Harmonika vrata sa termo prekidom | Harmonika vrata bez termo prekida |
| Termoizolacija | Da – aluminijumski profili sa poliamidnim prekidom | Ne – jednostavni aluminijumski profili |
| Dubina rama | 65 mm | 65 mm |
| Debljina stakla | 24 – 44 mm | 24 – 44 mm |
| Maksimalna visina krila | do 3,0 m | do 3,0 m |
| Maksimalna širina krila | do 1,3 m | do 1,3 m |
| Maksimalna težina krila | do 140 kg | do 140 kg |
| Zaptivanje | Dvostruko EPDM + termo umetci | Standardno EPDM |
| Koeficijent prolaza toplote (Uw) | do 1,1 W/m²K | Nema termo izolacije |
| Tipologije | Unutrašnje i spoljašnje otvaranje, 3–8 krila | Unutrašnje i spoljašnje otvaranje, 3–8 krila |
🌟 Prednosti
MF65
-
Visoka energetska efikasnost
-
Odlična zaptivenost i zvučna izolacija
-
Idealan za stambene objekte i zimske bašte
MF6500
-
Ekonomičniji i lakši sistem
-
Jednostavna montaža i održavanje
-
Pogodan za unutrašnje pregrade i letnje prostore
🏢 Primena
-
MF65 – preporučuje se za energetski zahtevne objekte, kuće, hotele i poslovne prostore gde se zahteva izolacija i komfor.
-
MF6500 – idealan za unutrašnje prostore, kafiće, restorane ili prostore koji se često otvaraju tokom leta.






