Alumil SMARTIA S350
Alumil SMARTIA S350 je savremeni klizni sistem sa termoizolacijom, dizajniran za maksimalnu vidljivost i prirodnu svetlost. Sa minimalnim aluminijumskim profilima, ovaj sistem je idealan za renovacije i modernizaciju prostora.
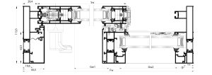
🔧 Tehničke karakteristike
-
Širina okvira: 92 mm
-
Širina krila: 35 mm
-
Minimalna visina konstrukcije: 116 mm
-
Maksimalna težina krila: do 180 kg
-
Debljina stakla: do 24 mm
-
Vrsta stakla: dvostruko (Ug = 1,0 W/m²K)
-
Vrsta termoizolacije: 24 mm poliamid
-
Koeficijent prolaza toplote (Uf): od 2,9 W/m²K
-
Akustična izolacija: do 28 dB
-
Vodonepropusnost: klasa 6A
-
Otpornost na vetroopterećenje: C2/B3
-
Vrste otvora: horizontalni klizni, klizni u zidu, kutni spojevi
-
Maksimalna širina spoja: 50 mm (minimalna verzija)
-
Mehanizam: GU 939
🏢 Upotreba u projektima
SMARTIA S350 je pogodan za:
-
Moderne stambene objekte
-
Renovacije i zamenu starih sistema
-
Projekte koji zahtevaju visoku zvučnu izolaciju i estetski čist dizajn



