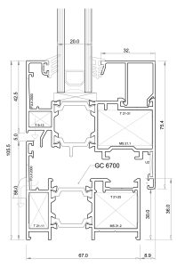
ALURIS T 6700
ALURIS T6700 je aluminijumski profilni sistem sa termičkim prekidom koji koristi poliamidne trake širine 24 mm radi postizanja vrhunske toplotne izolacije.
Projektovan je za prozore, vrata i fiksne staklene partije visokih performansi, kombinujući moderan dizajn, funkcionalnost i energetsku efikasnost.
Sistem obezbeđuje odličnu zaptivenost, stabilnost i dugotrajnost, uz mogućnost različitih tipologija otvaranja i širok izbor površinskih obrada.
Konstrukcija i materijali
-
Materijal profila: ekstrudirani aluminijum legure EN AW 6060 T6
-
Termički prekid: poliamidne trake širine 24 mm (PA66 GF25)
-
Sistem komora: troslojna konstrukcija sa centralnim zaptivanjem
-
Zaptivači: EPDM guma visoke otpornosti na UV zračenje i starenje
-
Debljina ispune (stakla): 20 – 44 mm
-
Tip okova: Euro-groove standard – kompatibilan sa najčešćim okovnim sistemima
Toplotne i akustične performanse
-
Koeficijent toplotne provodljivosti rama (Uf): ≈ 1,85 W/m²K
-
Koeficijent toplotne provodljivosti prozora (Uw): do 1,01 W/m²K (sa troslojnim staklom Ug=0,7 W/m²K)
-
Alternativna vrednost Uw: ≈ 1,36 W/m²K (sa dvoslojnim staklom Ug=1,1 W/m²K)
-
Zvučna izolacija: do 42 dB, u zavisnosti od stakla i tipologije
Otpornost i klase performansi
-
Propusnost vazduha: Klasa 4 (EN 12207)
-
Vodonepropusnost: Klasa E750 (EN 12208)
-
Otpornost na opterećenje vetrom: Klasa C4 (EN 12210)
Tipologije i mogućnosti
-
Prozori: jednokrilni, dvokrilni i kombinovani
-
Balkonska i ulazna vrata: unutrašnja ili spoljašnja otvaranja
-
Fiksne staklene partije
-
Konstrukcija sa kip-otvaranjem (tilt & turn)
-
Posebne izvedbe za fasadne sekcije i nadsvetla
-
Svi tipovi krila mogu se kombinovati sa različitim varijantama brtvljenja, ventilacionim profilima i dodatnim sigurnosnim elementima
Dimenzije i tehnički opseg
-
Debljina profila: 1,5 – 2,0 mm
-
Termički prekid: poliamid 24 mm
-
Debljina stakla: 20 – 44 mm
-
Uf vrednost: ≈ 1,85 W/m²K
-
Uw vrednost: do 1,01 W/m²K
-
Maksimalna visina krila: do 2400 mm
-
Maksimalna širina krila: do 1400 mm
-
Zvučna izolacija: do 42 dB
-
Površinska obrada: RAL, eloks, dekor (imitacija drveta)
Prednosti sistema
-
Izuzetna termoizolacija zahvaljujući širokom termičkom prekidu
-
Visoka zaptivenost i stabilnost konstrukcije
-
Elegantne ravne linije i moderan dizajn
-
Mogućnost ugradnje stakala različitih debljina
-
Visok nivo energetske efikasnosti (do Uw = 1,0 W/m²K)
-
Kompatibilnost sa standardnim okovnim sistemima
-
Dug vek trajanja i minimalno održavanje
Održavanje
-
Povremeno čišćenje profila i okova blagim deterdžentom i vodom
-
Redovna kontrola i podmazivanje pokretnih delova
-
Provera zaptivki i odvoda kondenzata jednom godišnje
-
Kod motorizovanih izvedbi – provera spojeva i zaštite kabla
Zaključak
ALURIS T6700 je savremeni aluminijumski sistem sa termičkim prekidom koji ispunjava najviše standarde energetske efikasnosti, zaptivenosti i trajnosti.
Odlikuje ga kombinacija visokih performansi, estetske jednostavnosti i fleksibilnosti u izradi – čineći ga idealnim izborom za moderne objekte koji zahtevaju pouzdanost i vrhunski kvalitet.
Aluris T 6700 – PSK (Paralelno-klizni) sistem
Opis sistema:
-
Aluminijumski sistem sa termičkim prekidom, namenjen za paralelno-klizna vrata i prozore.
-
Kombinuje dobru termoizolaciju i otpornost sa relativno pristupačnom cenom.
-
Pogodan za jednokrilna i dvokrilna vrata, balkonska vrata, klizne portale i fasadne panele.
Tehničke karakteristike:
-
Materijal profila: Aluminijum EN AW 6060 T6
-
Širina profila: okvir 70 mm, krilo 77 mm
-
Širina poliamidnih traka: 24 mm
-
Debljina stakla: 20 – 44 mm
-
Koeficijent prolaza toplote rama (Uf): 1,85 W/m²K
-
Koeficijent prolaza toplote prozora (Uw): 1,30 W/m²K (dvostruko staklo, Ug=1,08 W/m²K)
-
Zaptivanje: dvodelne E.P.D.M. gume
-
Obrada površine: prema standardima QUALANOD i QUALICOAT
Maksimalne dimenzije krila PSK:
-
Širina: do 1600 mm
-
Visina: do 2500 mm
-
Maksimalna težina krila: 200 kg
Prednosti:
-
Energetski efikasan – dobar U-value
-
Laka upotreba i održavanje
-
Pogodan za velike otvore
-
Kompatibilan sa različitim vrstama stakala (jednostruko, dvostruko, Low-E, sigurnosno staklo)



