KÖMMERLING 70
Kömmerling 70 je moderni PVC prozorski sistem sa višekomornom konstrukcijom i odličnim termoizolacionim svojstvima. Sistem kombinuje nemačku preciznost, visoku energetsku efikasnost i dugotrajnost, prilagođavajući se potrebama savremenih stambenih i poslovnih objekata.
Kömmerling 70 Standard (klasično krilo)
Opis sistema
Kömmerling 70 Standard je klasična PVC varijanta sa vidnim krilom, namenjena objektima gde je potrebna pouzdana termoizolacija, stabilnost i dugotrajnost. Sistem je pogodan za sve tipove zastakljenja, a profil sa 5 komora pruža optimalnu zaštitu od gubitka toplote i spoljašnjih uticaja.
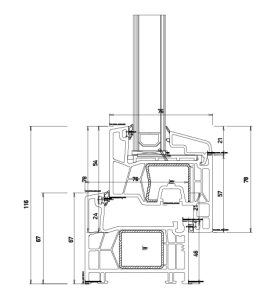
Tehničke karakteristike – Kömmerling 70 Standard
-
Dubina rama: 70 mm
-
Dubina krila: 82 mm
-
Debljina zastakljenja: do 41 mm
-
Termički prekid: višekomorna PVC konstrukcija
-
Toplotna izolacija (Uf): oko 1,3 W/m²K
-
Zvučna izolacija: do 44 dB
-
Propusnost vazduha: klasa 4
-
Vodonepropusnost: do E900
-
Otpornost na udar vetra: klasa C5/B5
-
Maksimalne dimenzije krila: do 1400 × 1600 mm
-
Maksimalna težina krila: do 130 kg
-
Tipovi otvaranja: okretno, kip, okretno-kip, dvokrilno
-
Tip okova: vidljivi ili skriveni okovi
-
Sigurnosne klase: RC1N i RC2N
Kömmerling 70 Elegance (skriveno krilo / minimalizam)
Opis sistema
Kömmerling 70 Elegance je varijanta sa minimalističkim dizajnom i skrivenim krilom, namenjena projektima gde je fokus na čistim linijama i većoj zastakljenoj površini. Sistem zadržava sve tehničke prednosti standardne verzije, uz dodatnu estetsku vrednost i moderni izgled.
Tehničke karakteristike – Kömmerling 70 Elegance
-
Dubina rama: 70 mm
-
Dubina krila: 82 mm
-
Debljina zastakljenja: do 36 mm
-
Termički prekid: višekomorna PVC konstrukcija
-
Toplotna izolacija (Uf): oko 1,4 W/m²K
-
Zvučna izolacija: do 43 dB
-
Propusnost vazduha: klasa 4
-
Vodonepropusnost: do E800
-
Otpornost na udar vetra: klasa C5/B5
-
Maksimalne dimenzije krila: do 1300 × 1500 mm
-
Maksimalna težina krila: do 130 kg
-
Tipovi otvaranja: okretno, kip, okretno-kip
-
Tip okova: potpuno skriveni okovi i šarke
-
Sigurnosne klase: RC1N i RC2N
Prednosti sistema
-
Visoka energetska efikasnost i termoizolacija
-
Minimalistički dizajn i čiste linije
-
Dve estetske varijante: standardno i skriveno krilo
-
Dugotrajnost, stabilnost i laka montaža
-
Pogodan za moderne stambene i poslovne objekte
-
Kompatibilnost sa PVC vratnim i fasadnim sistemima
Zaključak
Kömmerling 70 pruža pouzdan sistem za stambene i poslovne objekte, sa odličnim termo- i zvučnim izolacionim svojstvima. Bez obzira na odabranu varijantu, sistem kombinuje funkcionalnost, dugotrajnost i moderan dizajn u skladu sa evropskim standardima kvaliteta
🔹 Kömmerling 70 – PSK (Paralelno-klizni) sistem
Opis sistema:
-
PVC sistem sa 70 mm dubine montaže
-
5-komorni dizajn za poboljšanu termoizolaciju
-
Dvostruki sistem brtvljenja za veću otpornost na vremenske uslove
-
Pogodan za izradu kliznih vrata i prozora
Tehničke karakteristike:
-
Materijal profila: PVC bez olovnih stabilizatora, 100% reciklabilan
-
Širina profila: 70 mm
-
Broj komora: 5
-
Koeficijent prolaza toplote (Uf): do 1,2 W/(m²K)
-
Debljina stakla: 10–44 mm (mogućnost ugradnje trostrukog stakla)
-
Zvučna izolacija: do 42 dB
-
Boje i završna obrada: bela, drvo dekori, jednobojne i metalik boje
-
Ekološki aspekt: proizvedeno sa stabilizatorima na bazi kalcijuma i cinka
Prednosti:
-
Visoka energetska efikasnost
-
Izvrsna zvučna izolacija
-
Povećana sigurnost uz mogućnost ugradnje sigurnosnih stakala i okova
-
Dostupnost u širokom spektru boja i završnih obrada
-
Ekološki prihvatljiv proizvod
Maksimalne dimenzije PSK krila:
-
Širina: do 1600 mm
-
Visina: do 2500 mm
-
Maksimalna težina krila: do 200 kg



