WICONA WICLINE 65 EVO
WICONA WICLINE 65 je aluminijumski prozorski sistem sa termičkim prekidom, koji kombinuje preciznu nemačku tehnologiju, visoku energetsku efikasnost i moderan dizajn. Sistem je dostupan u dve izvedbe – standardno vidno krilo i Hidden Sash sa skrivenim krilom, što omogućava da zadovolji i tehničke i estetske zahteve savremenih objekata.
WICLINE 65 Standard (vidno krilo)
Opis sistema
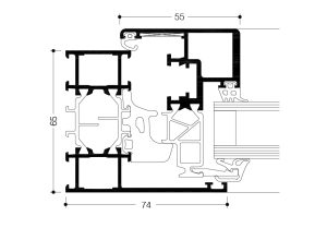
WICLINE 65 Standard je klasična verzija prozorskog sistema sa vidnim krilom, koji pruža optimalan balans između toplotne izolacije, čvrstoće i estetike. Dubina rama od 65 mm i krila od 75 mm omogućavaju primenu različitih tipova zastakljenja i visoku otpornost na spoljašnje uticaje. Idealno je rešenje za stambene i poslovne objekte koji zahtevaju pouzdane i dugotrajne prozorske konstrukcije sa prepoznatljivim aluminijumskim izgledom.
Tehničke karakteristike – WICLINE 65 Standard
-
Dubina rama: 65 mm
-
Dubina krila: 75 mm
-
Debljina zastakljenja: do 59 mm
-
Termički prekid: poliamidne trake širine 24 mm
-
Toplotna izolacija (Uf): oko 1,4 W/m²K
-
Zvučna izolacija: do 47 dB
-
Propusnost vazduha: klasa 4
-
Vodonepropusnost: do E1500
-
Otpornost na udar vetra: klasa C5/B5
-
Maksimalne dimenzije krila: do 1600 × 2500 mm
-
Maksimalna težina krila: do 130 kg
-
Tipovi otvaranja: okretno, kip, okretno-kip, dvokrilno
-
Tip okova: vidljivi ili skriveni okovi
-
Sigurnosne klase: RC1N i RC2N
WICLINE 65 Hidden Sash (skriveno krilo)
Opis sistema
WICLINE 65 Hidden Sash je elegantna verzija sa potpuno skrivenim krilom, namenjena projektima sa minimalističkim i modernim izgledom fasade. Spoljašnja površina rama i krila je potpuno poravnata, što omogućava čistu liniju i veću zastakljenu površinu za maksimalan prodor prirodne svetlosti. Sistem zadržava sve tehničke prednosti standardne verzije – izuzetnu toplotnu i zvučnu izolaciju, stabilnost i dugotrajnost, uz dodatnu estetsku vrednost.
Tehničke karakteristike – WICLINE 65 Hidden Sash
-
Dubina rama: 65 mm
-
Dubina krila: 75 mm
-
Debljina zastakljenja: do 42 mm
-
Termički prekid: poliamidne trake širine 24 mm
-
Toplotna izolacija (Uf): oko 1,5 W/m²K
-
Zvučna izolacija: do 46 dB
-
Propusnost vazduha: klasa 4
-
Vodonepropusnost: do E1200
-
Otpornost na udar vetra: klasa C5/B5
-
Maksimalne dimenzije krila: do 1400 × 2250 mm
-
Maksimalna težina krila: do 130 kg
-
Tipovi otvaranja: okretno, kip, okretno-kip
-
Tip okova: potpuno skriveni okovi i šarke
-
Sigurnosne klase: RC1N i RC2N
Prednosti sistema
-
Visoka energetska efikasnost i termoizolacija
-
Minimalistički dizajn i čiste linije
-
Dve estetske varijante: standardno i skriveno krilo
-
Kompatibilnost sa WICONA fasadnim i vratnim sistemima
-
Dugotrajnost, stabilnost i laka montaža
-
Pogodan za moderne stambene i poslovne objekte
Zaključak
WICONA WICLINE 65 nudi vrhunske performanse i mogućnost izbora između klasičnog ili minimalističkog dizajna. Bez obzira na varijantu, sistem kombinuje funkcionalnost, dugotrajnost i estetsku eleganciju u skladu sa najvišim evropskim standardima kvaliteta.






